In Via Canina, nel centro storico di Casale Monferrato, proponiamo in vendita un’elegante soluzione abitativa situata in un affascinante edificio dei primi dell’Ottocento, composto da sole due unità. L’appartamento, libero su tre lati, si trova al primo piano (senza ascensore) e gode di affacci suggestivi su un ampio cortile interno e sulla via principale, grazie al terrazzo e al balcone privati.
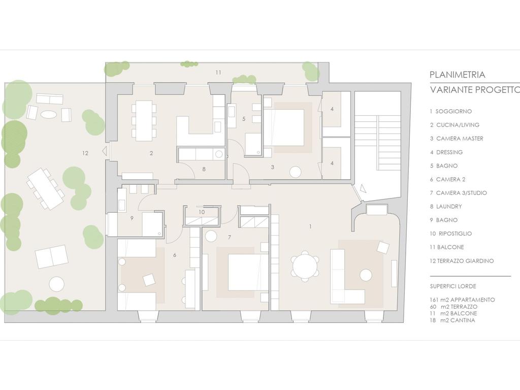
L’ingresso si apre su un ampio salone luminoso, collegato a una spaziosa cucina abitabile con secondo accesso indipendente. La zona notte include tre camere da letto, due bagni (uno rifinito con pregiato marmo rosa del Portogallo), lavanderia/cabina armadi, ripostiglio, balcone, terrazzo di circa 60 mq e una cantina.
Finiture di alta qualità: parquet in rovere massello in tutte le stanze, infissi in legno con doppi vetri, climatizzazione canalizzata in tutti gli ambienti, impianto d’allarme e riscaldamento autonomo con caldaia a condensazione. Spese condominiali contenute, limitate a luce e pulizia delle scale.
La copertura del fabbricato è stata completamente rifatta nel 2020, mentre le facciate su via Canina e sul terrazzo sono state tinteggiate nel luglio 2021.
Una soluzione esclusiva, ideale per chi cerca charme storico, comfort moderni e una posizione centralissima.
Stampa la Scheda
Prezzo: 250.000 €
Superficie: 230 mq
Camere: 3
Bagni: 2
Piani: 2
Stato: Perfette Condizioni
Provincia: Alessandria
Comune: Casale Monferrato
Zona: Casale Monferrato
Indirizzo: Via Luigi Canina
Territorio: Casale Monferrato
Il
comune di Casale Monferrato è un piccolo gioiello contemporaneo che si estende
su un’area pianeggiante, incastonato ai piedi delle colline Patrimonio
dell’Unesco. Il centro storico vanta edifici risalenti sino al 1100 ricchi di fascino e di storia. Da tempi antichi la sua posizione è estremamente favorevole, situato proprio al centro del triangolo tra le città metropolitane di Torino,
Milano e Genova. Vicine anche le piste da sci della Valle d’Aosta. Casale, capitale del Monferrato,
è al centro di un vasto territorio che si snoda tra vigneti e risaie,
ricco di luoghi incantevoli soprattutto in primavera e autunno, le
stagioni in cui la natura con i suoi colori e frutti valorizza il paesaggio
monferrino. Anche il panorama
delle manifestazioni del territorio, vario e vivace, esprime l’entusiasmo di
luoghi che si aprono a un turismo culturale, ambientale ed enogastronomico di
ampio richiamo.
Planimetria [ 1 ]

Planimetria [ 2 ]
