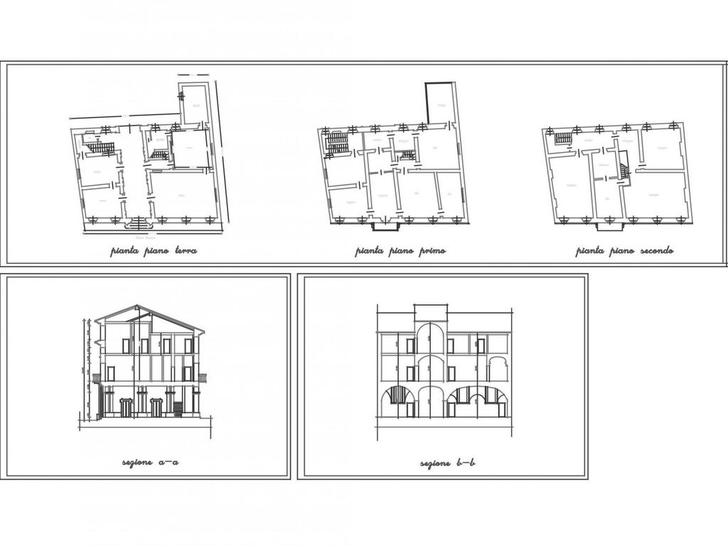
In Trino, we offer for sale an entire building dating back to 1700. The building is listed in the municipality's register of assets of historical and cultural interest and still preserves the original structure and details of the period, lending itself perfectly to a renovation with conservative restoration to obtain four flats. The building is arranged on two above-ground floors. On the ground floor we find a splendid entrance with a characteristic wooden door onto a common courtyard, access to two separate flats and a splendid staircase with a barrel-vaulted roof that leads to the upper floor. On the main floor are six large rooms characterised by ribbed and cross vaulted ceilings finely decorated with frescoes, a balcony on Via Cavour and a terrace overlooking the private courtyard. On the second floor above ground there is a large habitable attic.
Print the Card
Price: 180.000 €
Surface: 580 mq
Rooms: 8
Bathrooms: 4
Floors: 3
State: To be renovated
Province: Vercelli
Common: Trino
Zone: Trino
Address: Corso Cavour 61
Territory: Trino
At the foot of the Monferrato hills lies Trino, an interesting center of the lower Vercelli plain that boasts a long history. Trino was the main seat of the fiefdom of the Paleologi, a noble family that ruled the fortunes of the Marquisate of Monferrato from 1305 until 1532. There are numerous artistic and architectural testimonies in the town: Palazzo Paleologo, seat of the court of the Paleologi, which has decorative elements of Moorish character unique in Piedmont; the church of San Bartolomeo, of medieval foundation; and the church of San Michele in Insula, just outside the town, which still retains its Romanesque physiognomy.
Planimetry [ 1 ]


 
			
























