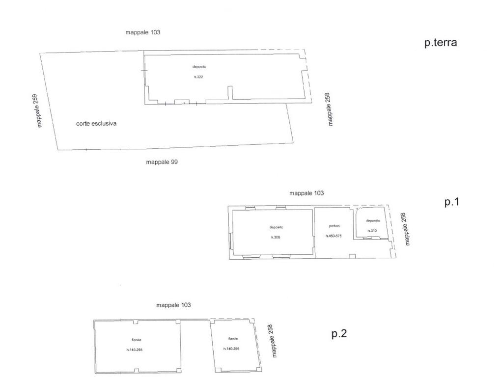
We are located in Cella Monte, in the hamlet of Coppi, in a splendid hilly, dominant and panoramic position. We offer for sale a housing solution dating back to the 1800s, with new roofs, original period fireplaces, frescoes, hipped ceilings, original variegated terracotta flooring and decorated cement tiles.The structure is free on three sides, arranged on three floors above ground, with a private courtyard in front of the house and the possibility of parking. Another multipurpose building, communicating with the main house, suitable as an annexe tavern, warehouse, laboratory. On the back of the house, private garden, warehouse with fireplace, large room (former stable), garage with the possibility of parking for three cars, large and characteristic cellar. The living area is composed as follows: on the ground floor two entrances, large kitchen with fireplace, spacious living room, second entrance and hallway with staircase communicating with the upper floors. On the first floor two large bedrooms, one with fireplace, bathroom with bathtub, balcony. On the second floor two spacious bedrooms.Very bright and charming house.
Print the Card
Price: 90.000 €
Surface: 250 mq
Rooms: 4
Bathrooms: 2
Floors: 2
Garage: Si
CEI: G > 3,50 EP
State: To be renovated
Province: Alessandria
Common: Cella Monte
Zone: Cella Monte
Address: Fraz. Coppi
Territory: Cella Monte
A
small village on the hills of Monferrato, in the province of Alessandria, Cella
Monte is located in that part of Piedmont famous all over the world for its
excellent vineyards and long history of devotion to wine production. Immersing
yourself in its narrow streets, you may happen to observe shells inside the
walls: they are not the work of man, but of nature. Millions of years ago there
was the sea here and the Monferrato hills were its archipelagos. As the water
withdraws, the sandstone remains, a stone with which the houses of its five
hundred inhabitants were built. The deeper you go into the walk, the more you
realize that you are in an open-air museum, which has remained exactly the same
as when it was built: all around, the soft hills on which a group of houses
occasionally sprouts, between the wonderful ups and downs of the vineyards that
look like an impressionist painting. A landscape so beautiful that in 2011
UNESCO declared the wine landscapes of the Langhe, Roero and Monferrato the
fiftieth Italian World Heritage Site.
Planimetry [ 1 ]

Planimetry [ 2 ]
