Entire building from the early 1900s originally part of the Stabile della Pesa belonging to the Church as it is located on Rivetta Street, within the quadrangle formed by the churches of the historic center, including the Cathedral of St. Evasius and the Church of St. Dominic.
Inside the building, one can breathe in the charm of the era thanks to its cask and cross vaults, frescoed ceilings or ceilings embellished with wooden beams. The small interior garden enriches the view from the balconies.
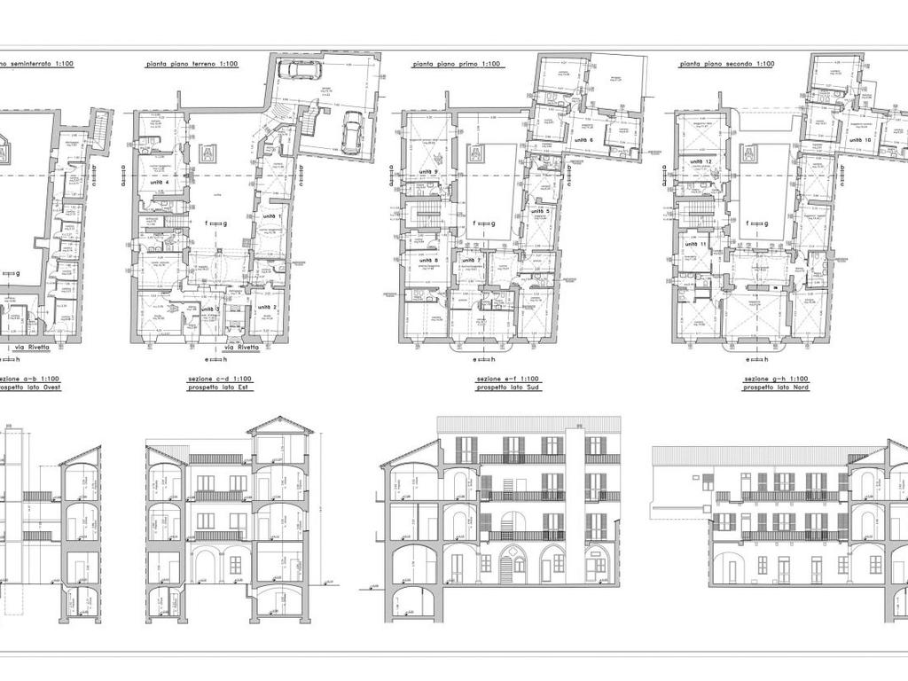
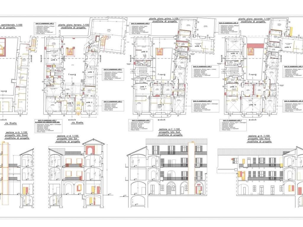
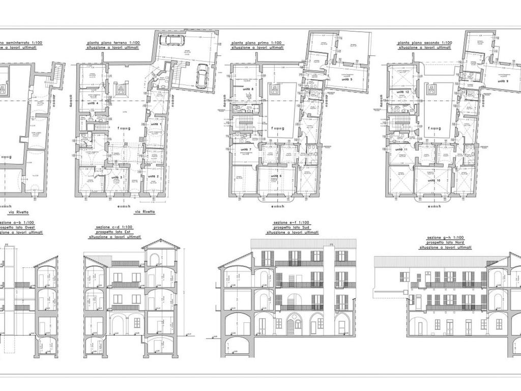
The initial plan called for 13 apartments, but depending on the size desired, the number of units can be modified. Valuable pertinences for the historical center some parking spaces and many cellars.
Among the work already done on the common parts are the consolidation of the foundation and the elevator shaft.
You can get more information regarding this in our office, please do not hesitate to contact us.
Print the Card
Price: 140.000 €
Surface: 1300 mq
Rooms: 22
Bathrooms: 15
Floors: 3
Garage: Si
CEI: Non Specificato
State: To be renovated
Province: Alessandria
Common: Casale Monferrato
Zone: Casale Monferrato
Address: Via Rivetta 13
Territory: Casale Monferrato
The city of Casale Monferrato
is a little contemporary gem extending over a plain area, embedded in the
Unesco World Heritage foothills. The historical town centre features edifices
dating back to the 12th century, testament to the fact that since ancient
times, its location has been extremely favourable, even more so today as it is
situated right in the centre of the triangle between the metropolitan cities of
Turin, Milan and Genoa. The ski tracks of Valle d'Aosta are also close by. Casale, the capital of Monferrato, is at the centre of a vast
territory that unfolds through vineyards and rice fields, rich in enchanting
places, especially in spring and autumn, the seasons where nature enhances the
Monferrato landscape with its colours and fruits. Even the area's panorama of
events, varied and lively, expresses the enthusiasm of locations that are open
to cultural, environmental and food and wine tourism of broad appeal.
Planimetry [ 1 ]

Planimetry [ 2 ]

Planimetry [ 3 ]
