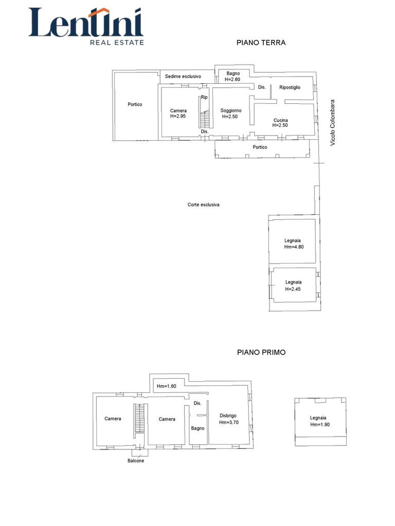
In Candia Lomellina, in the Terrasa hamlet, we offer for sale a splendid housing solution, independent on three sides, panoramic, sunny, entirely renovated while maintaining its rustic originality, typical of country houses.
The structure is organized on two floors. On the ground floor the living area consisting of a beautiful and original kitchen with dining area, induction hob, beautiful wood stove, large living room with fireplace, bedroom, hallway, bathroom complete with shower stall. A convenient staircase leads us to the second floor where we find the sleeping area, consisting of two beautiful and spacious bedrooms, one with balcony and overlooking the private courtyard, garden and open countryside, bathroom complete with shower box, another room with exposed beams suitable for additional bedroom, study, living room.
To complement the property, a large warehouse room with large former barn and tool shed, a garage, sona barbecue with oven, wonderful garden with fruit trees.
Renovated property with gas central heating, fireplace, wood stove, heat pump for heating and cooling, photovoltaic system and charging stations for possible vehicles or electric vehicles.
Print the Card
Price: 210.000 €
Surface: 240 mq
Rooms: 2
Bathrooms: 2
Floors: 2
Garage: Si
CEI: F 2,60-3,50 EP
State: Perfect Condition
Province: Pavia
Common: Candia Lomellina
Zone: Candia Lomellina
Address: Vicolo Colombara 4
Territory: Candia Lomellina
A village in Lomellina, not far from the River Sesia and with around 1,500 inhabitants. The square, in which the weekly market also takes place, has a door adorned with a coat of arms representing two white lilies. some of the houses are decorated with terracotta. Of the kilns that were once a mainstay of the local economy, the chimneys now remain clearly visible. The Chapel of S. Anna, dating from around 1500 and still well preserved, is worth visiting.
