In the heart of Casale Monferrato, inside the historic building of the Marquise Anna d'Alençon, a building dating back to 1400, we offer for sale an excellent solution, unique and exclusive, where you can breathe the charm of the details of the time. Independent on three sides and set over two floors, the structure consists of two units, each with its own private entrance. On the ground floor, apartment comprises entrance hall, lounge, bedroom, kitchen, bathroom, porch, private garden, cellar. On the first floor, apartment with original coffered ceilings of the era, living room, two bedrooms, spacious kitchen with access to beautiful and striking balcony entirely made of original wood, tower with beautiful surrounding panorama and cellar. Parking space inside the courtyard overlooking the Via Alessandria. Historical information: The palace of the Marquise Anna d'Alençon is a splendid noble residence of the late fifteenth century. The façade that overlooks the present via Alessandria does not present any external sign of distinction, but it is sufficient to cross the threshold of the massive doorway to immerse oneself in an atmosphere of great suggestion. The coffered ceiling of the large colonnaded portico, the garden courtyard, the brick columns with shelled capitals, the decorations with geometric patterns and heraldic coats of arms of noble families linked to the Marquises of Monferrato, are all elements that attest to the historical importance of the noble residence. The auspicious inscription placed on the architrave of the ancient portal of access tells: "Last this house as long as the ant has drunk all the waves of the sea and the turtle has done all the rounds of the earth". The genealogy weapon with the lilies of France of the Marquise Anna d'Alençon and the insignia of the paleologic dynasty that adorns the base of the staircase to the main floor are interesting. The wooden coffered ceiling and the high band of seventeenth-century frescoes of the large hall on the ground floor of the building belonging to the Bobba family and then the Fassati di Balzola family are very impressive. Restored by Ing. Vittorio Tornielli in 1929, the palace of the Marquise Anna d'Alençon has returned to its former glory thanks to a recent and careful operation of cleaning up the decorations. ("Dionigi Roggero by Circolo culturale I Marchesi del Monferrato").
Distance from: (measured in a straight line)
Airports
59.0 km – Milano MXP – Malpensa
Public transport
580 m – Bus stop
Highway exit
2.6 km
Hospital
550 m – Clinica Sant’Anna
Coast
82.2 km
Ski resort
65.0 km
Shops
< 100 m – Pastry shop – Pasticceria Chilò
Eating out
< 100 m – Bar – Le petit monde biò
Sports activities
620 m – Sport centre – Palestra Bistolfi – gymnastics
Schools
190 m – School
Pharmacy
150 m – Pharmacy – Parafarmacia San Francesco
Veterinary
860 m – Veterinary – Clinica Veterinaria “Città di Casale Monferrato”
Information about Casale Monferrato
Elevation 116 m a.s.l.
Total area 86.21 km²
Landform Flatland
Population 34246
Print the Card
Price: on request
Surface: 300 mq
Rooms: 3
Bathrooms: 2
Floors: 2
Garage: Si
CEI: F 2,60-3,50 EP
State: Good Condition
Province: Alessandria
Common: Casale Monferrato
Zone: Casale Monferrato
Address: Via Alessandria 26
Territory: Casale Monferrato
The city of Casale Monferrato
is a little contemporary gem extending over a plain area, embedded in the
Unesco World Heritage foothills. The historical town centre features edifices
dating back to the 12th century, testament to the fact that since ancient
times, its location has been extremely favourable, even more so today as it is
situated right in the centre of the triangle between the metropolitan cities of
Turin, Milan and Genoa. The ski tracks of Valle d'Aosta are also close by. Casale, the capital of Monferrato, is at the centre of a vast
territory that unfolds through vineyards and rice fields, rich in enchanting
places, especially in spring and autumn, the seasons where nature enhances the
Monferrato landscape with its colours and fruits. Even the area's panorama of
events, varied and lively, expresses the enthusiasm of locations that are open
to cultural, environmental and food and wine tourism of broad appeal.
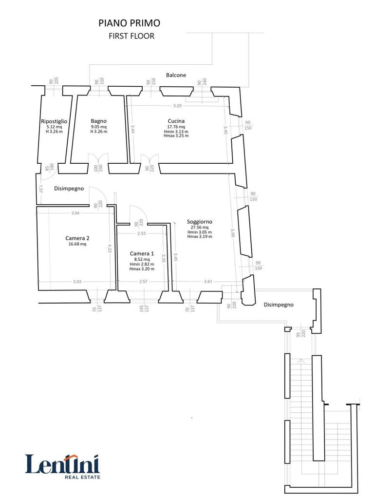
Planimetry [ 1 ]

Planimetry [ 2 ]

Planimetry [ 3 ]
