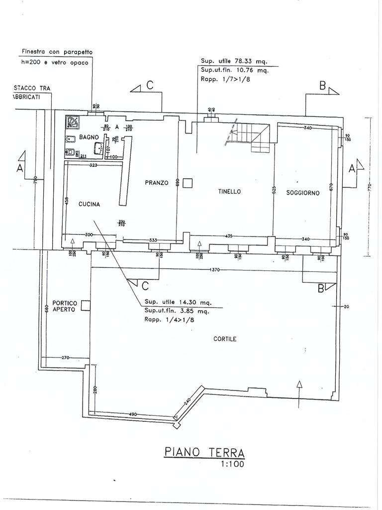
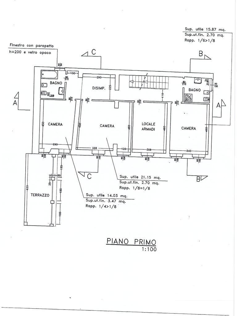
In Morano sul Po (AL), we offer for sale a semi-detached house, completely renovated both internally and externally. The property is on three floors, with a large private courtyard and veranda. The house comprises on the ground floor an entrance to a large living room, kitchen and bathroom. On the first floor, four large bedrooms, terrace and two bathrooms. On the attic floor there are four beautiful bedrooms and the possibility of obtaining a fourth bathroom. Wooden window frames with double glazing and PVC shutters.
Print the Card
Price: 150.000 €
Surface: 450 mq
Rooms: 8
Bathrooms: 4
Floors: 3
CEI: Non Specificato
State: Renovated
Province: Alessandria
Common: Morano sul Po
Zone: Morano sul Po
Address: Via Defendente Finazzi
Territory: Morano sul Po
Morano is a small village in Monferrato, an area defined by the beauty of its landscapes, which are unique because they have been shaped by the long tradition of wine-growing in the hills and cereal and rice cultivation in the plains. Morano stands on the plain side, almost brushed by the river Po, which seemingly marks the boundary with the world renowned hills.
Planimetry [ 1 ]

Planimetry [ 2 ]

Planimetry [ 3 ]
